• News
  • Projekte
    • Galerie
    • Liste
    • Ausgeführt
    • Bestand
    • Dienstleistung
    • Hotel Gastronomie
    • Infrastruktur
    • Sondernutzungsplan
    • Studien
    • Wohnen
    • Wettbewerbe
  • Engagement
  • Firma
  • Team
  • Jobs
  • Publikationen
  • Kontakt
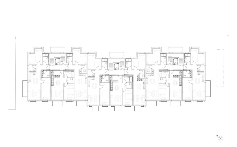
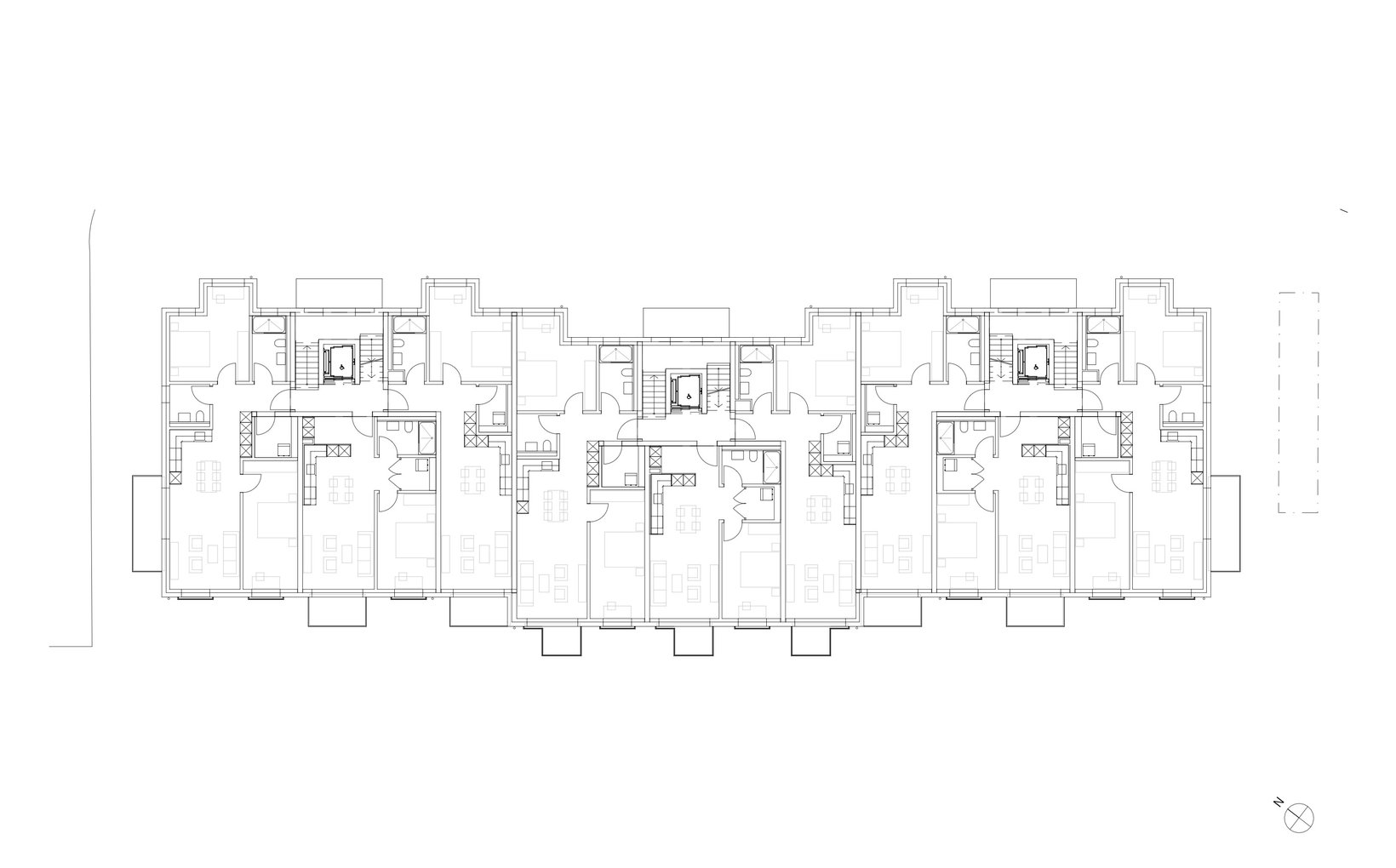
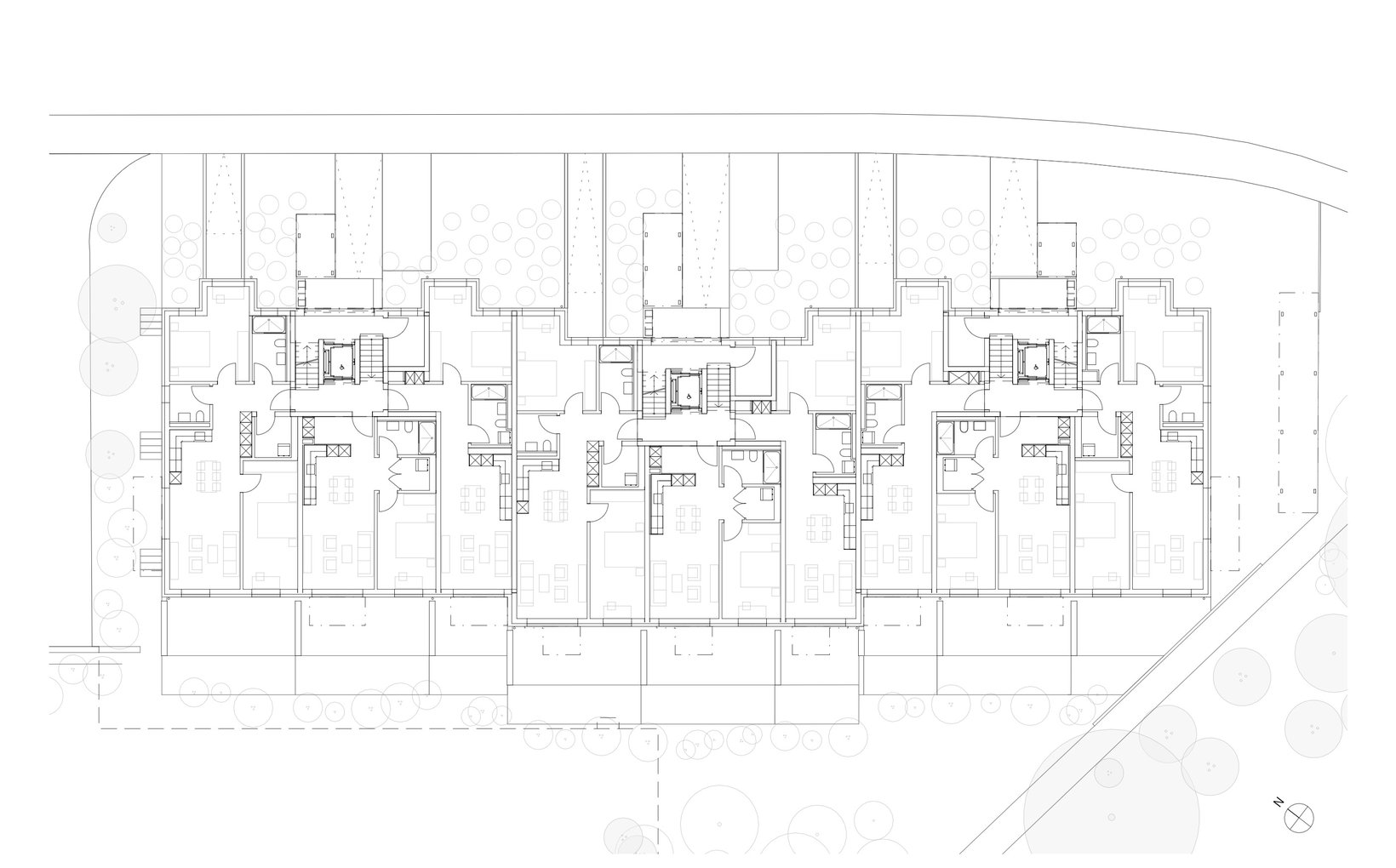
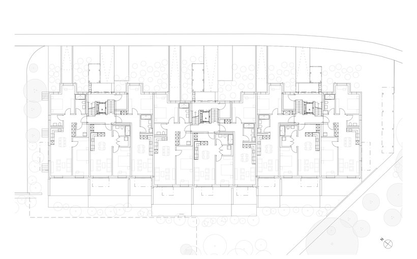
  • Ersatzneubau Sagehof Ebikon

    Der Ersatzneubau wird auf drei gleich grosse Baukörper aufgeteilt, die sich entlang der Sagenhofstrasse ausrichten. Das in der Höhe und Tiefe gegliederte Volumen wird durch eine klare, einfache Wahl der Materialien und Farben als Gesamterscheinung gestärkt. Eine Komposition aus grobkörnigem Putz an der Hauptfassade sowie feinkörnigeren, helleren Flächen der vorspringenden Gebäudeteile und des Sockels bilden die solide Basis. Warme erdige Farbtöne stehen in Beziehung zu den Nachbarshäusern und integrieren sich in die grüne Umgebung. Die weiteren Elemente wie Fenster, Geländer, Sonnenschutz kontrastieren im warmen Grau. Die dunkle Dacheindeckung mit der PV-Anlage nimmt sich dezent zurück. Insgesamt entstehen 45 neue Kleinwohnungen. Der Bestand hat ausschliesslich Grosswohnungen. Der neu Wohnungsmix schafft ein breiteres Wohnspektrum und ermöglicht den best. Mietern weiter im Areal wohnhaft zu bleiben, auch wenn sich die Lebensumstände ändern und weniger Wohnraum benötigt wird.

    In Zusammenarbeit mit: 
    Bauingenieur: Jäger Partner AG, Zürich
    Elektroingenieur: Kuratli Elektroplan AG, Watt
    PV-Planung: Climatch AG, Zürich
    HLKS-Ingenieur: Pfenninger & Partner    AG, Zürich
    Bauphysiker: soundtherm GmbH, Winterthur
    Brandschutzplaner:Thomas Lüem Partner AG, Sursee
    Landschaftsarchitekt:Fahrni Landschaftsarchitektur GmbH, Luzern
    Farbdesign: Angelika Walthert, Luzern

    • Ort: Ebikon
    • Kategorie: Wohnen
    • Baubeginn: 2026
    • Fertigstellung: 2026
    • Status: In Planung
    • Bauherrschaft: Swiss Life Asset Zentralschweiz, Emmenbrücke
    • Partner lbta: WSG AG Zentralschweiz, Emmenbrücke
    • Projektleitung lbta: Sibylle Theiler Rindlisbacher
    • Team lbta: Noel Bühlmann, Rolf Christen, Nicole Wyss, Eleftheria Tzifa, Ankica Gander, Kim Dao Tran-Nguyen
    Ersatzneubau Sagehof Ebikon
    Ebikon
    Wohnen
    None
    2026
    In Planung
    636
lbta*. Gemeinsam Entwickeln.