• News
  • Projekte
    • Galerie
    • Liste
    • Ausgeführt
    • Bestand
    • Dienstleistung
    • Hotel Gastronomie
    • Infrastruktur
    • Sondernutzungsplan
    • Studien
    • Wohnen
    • Wettbewerbe
  • Engagement
  • Firma
  • Team
  • Jobs
  • Publikationen
  • Kontakt
  • Umbau alte Post

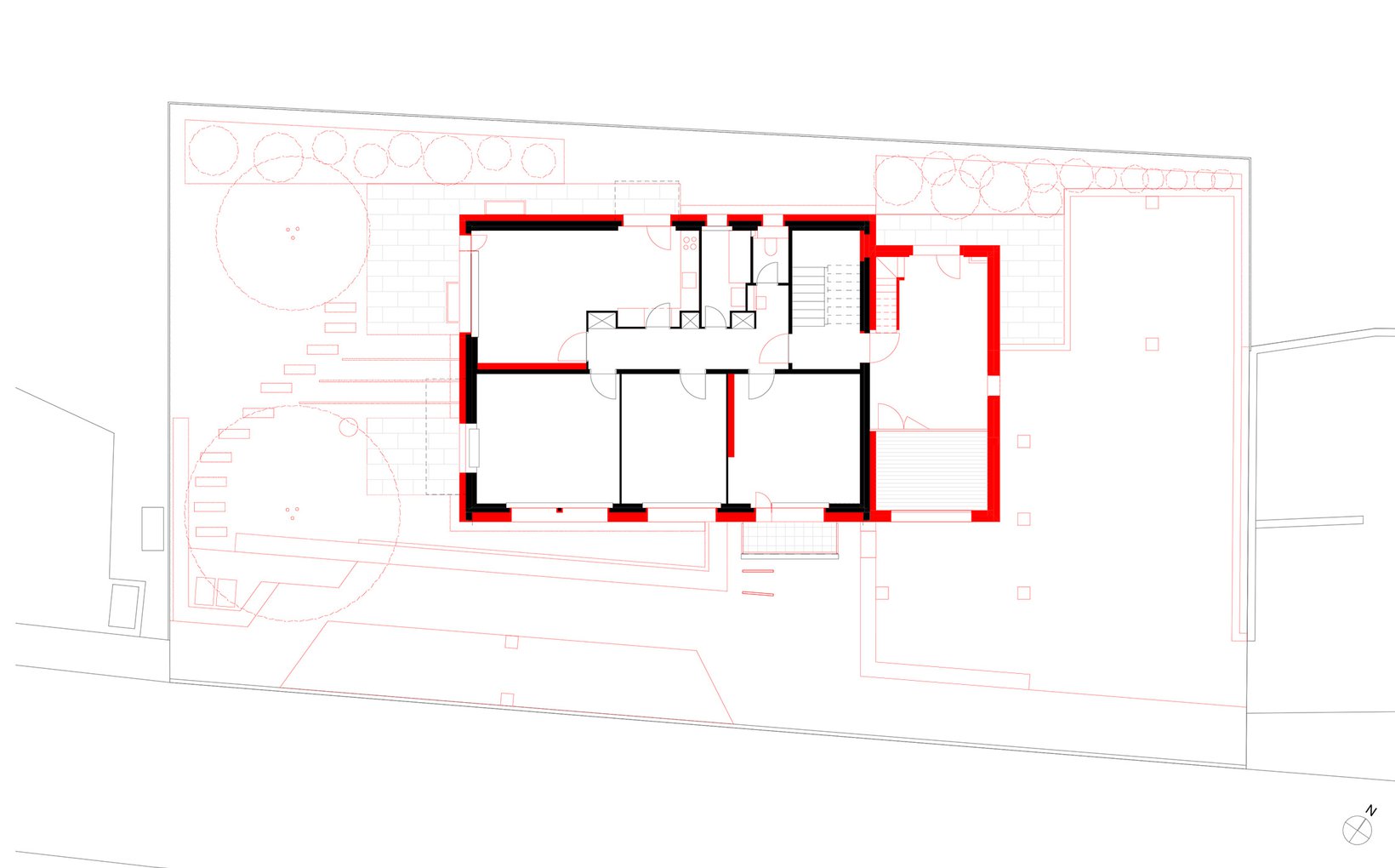
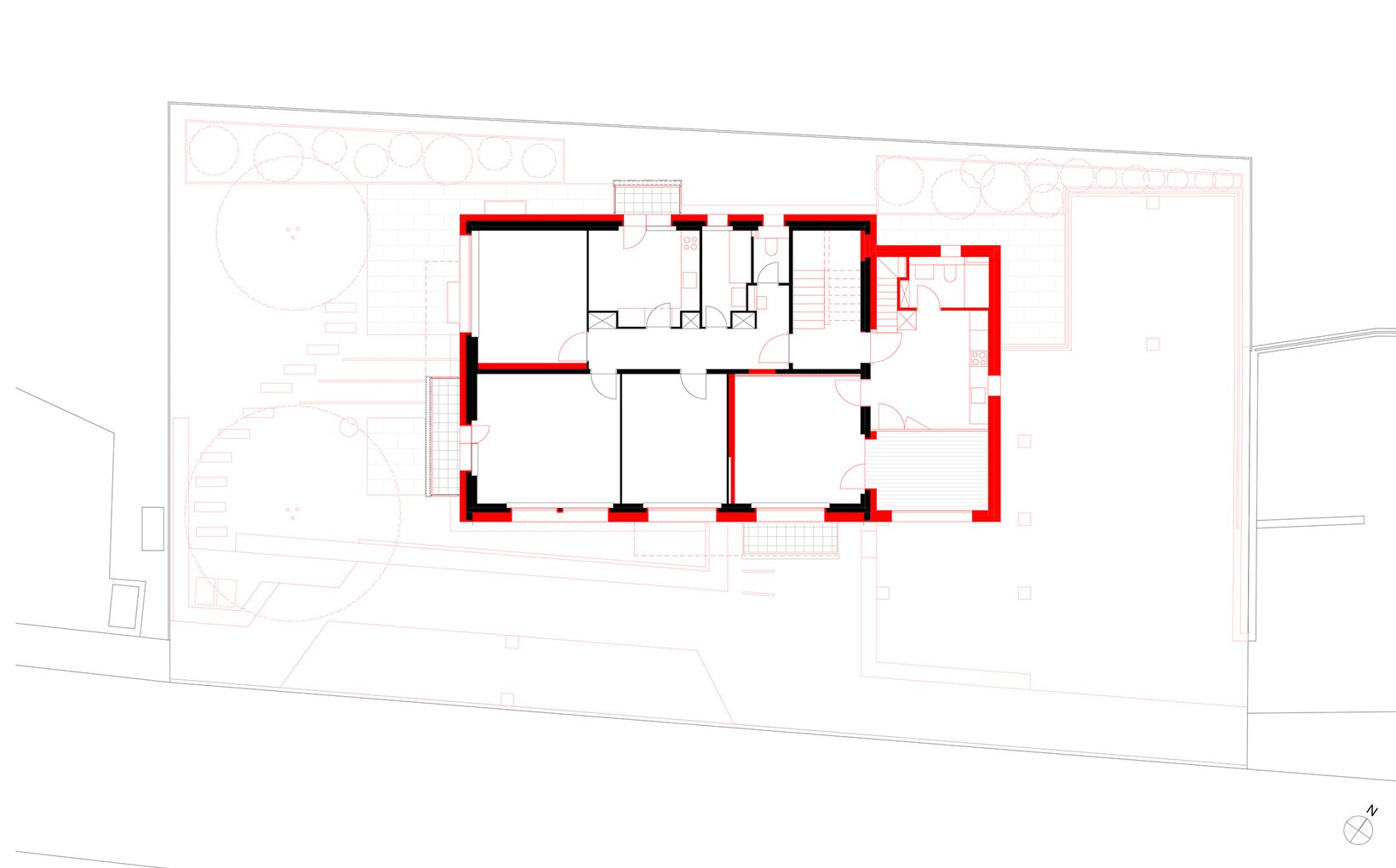
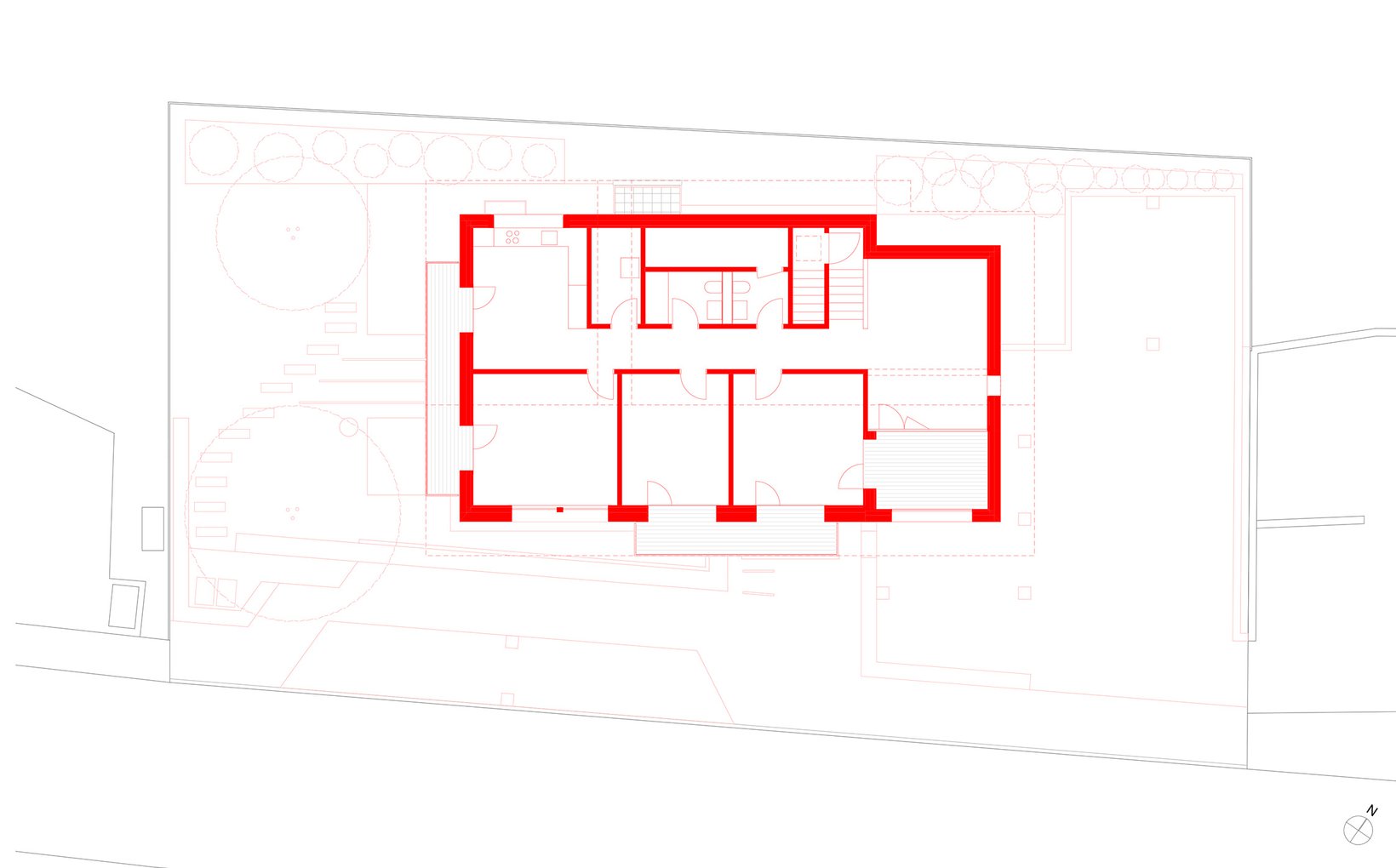
    Das Haus der ehemaligen Post im Zentrum von Wilen aus den 1960er Jahren wird in ein reines Wohnhaus umgebaut und erweitert. Im Äussern galt es neben der Eingliederung in die Nachbarschaft der denkmalgeschützten Kapelle auch das Parkplatzreglement für ein bewilligungsfähiges Projekt zu befriedigen. Im Inneren entstanden 5 unterschiedliche Wohnungen: Das Studio im Erdgeschoss in den ehemaligen Räumen der Postfiliale; die 2 sanft sanierten 3.5 und 4.5 Zi-Whg. aus den 1960er Jahren in den darüberliegenden Geschossen; die 2.5 Zi.-Maisonette-Whg. mit Tiny-House-Charakter im Anbau und die neue 4.5 Zi-Whg. unter dem neuen Satteldach der Aufstockung. Alle 5 Wohnungen verfügen über grosszügige Aussenräume, davon haben 3 Wohnungen einen zusätzlichen Gartensitzplatz.

    In Zusammenarbeit mit: 
    Kostenplaner + Bauleitung: Eggimann Architekten, Sarnen
    Landschaftsarchitektin: Pia Amstutz, Stans
    Bauingenieur: Trachsel AG, Luzern
    Holzbauunternehmer: Rohrer Josef AG, Flüeli-Ranft
    Elektrounternehmer: Gasser Elektro AG, Alpnach Dorf
    Heizungsunternehmer: Reinhard Haustechnik AG, Sarnen
    Sanitärunternehmer: Krummenacher Sanitär AG, Kägiswil
    Bauphysiker: Martinelli + Menti AG, Luzern 

    • Ort: Wilen
    • Kategorie: Wohnen
    • Baubeginn: 2022
    • Fertigstellung: 2025
    • Status: Realisiert
    • Bauherrschaft: Karl Hofstetter, Meggen
    • Gesamtleitung lbta: Franz Bucher Suanzes
    • Projektleitung lbta: Ankica Gander
    • Team lbta: Aleksandra Danova, Karin Kunz, Agata Ratajczak, Sibylle Theiler Rindlisbacher
    Umbau alte Post
    Wilen
    Wohnen
    None
    2025
    Realisiert
    625
lbta*. Gemeinsam Entwickeln.