• News
  • Projekte
    • Galerie
    • Liste
    • Ausgeführt
    • Bestand
    • Dienstleistung
    • Hotel Gastronomie
    • Infrastruktur
    • Sondernutzungsplan
    • Studien
    • Wohnen
    • Wettbewerbe
  • Engagement
  • Firma
  • Team
  • Jobs
  • Publikationen
  • Kontakt
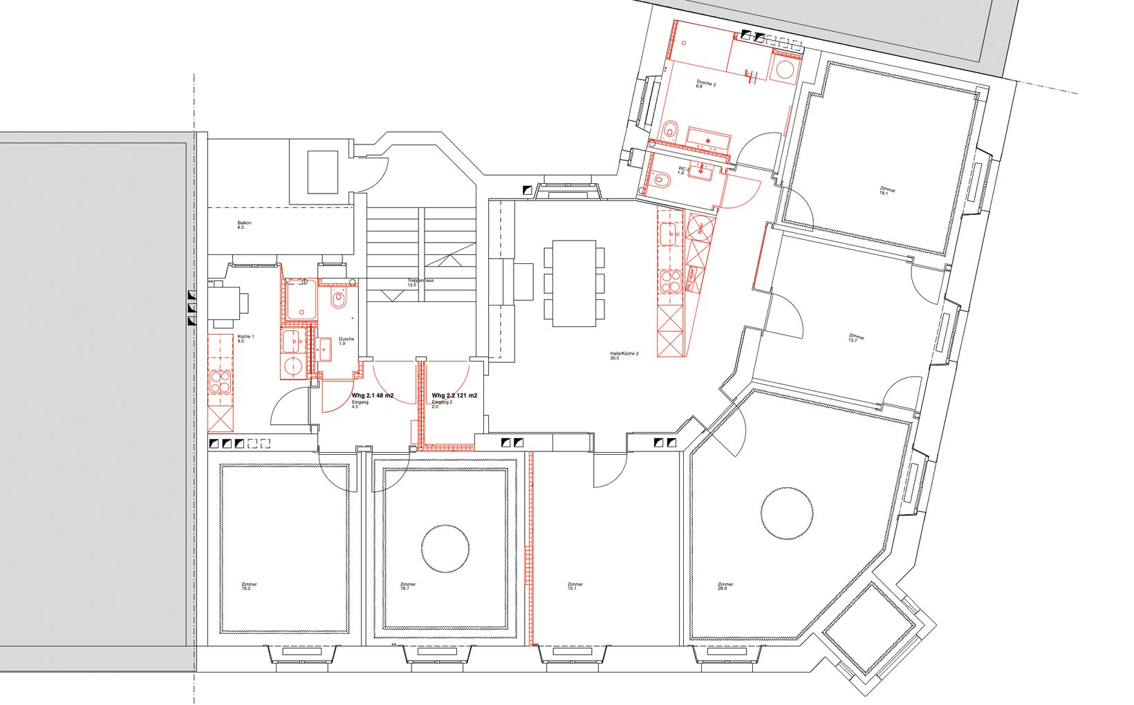
  • Umbau Hirschengraben 15, Luzern

    Im 2. Obergeschoss des Ende 19. Jahrhundert erbauten Gebäudes werden Büroräume in Wohnungen umgenutzt. Die um 1915 ausgebaute Halle bildet das Herzstück der grossen Wohnung und wird als zentraler Essraum mit Küche das Zentrum der Wohnung. Die neuen Fenster werden wieder an die ursprüngliche Einteilung angepasst. Durch den gepflegten Bestand können die Zimmer ihren Charakter alle behalten.

    • Ort: Luzern
    • Kategorie: Bestand, Ausgeführt
    • Baubeginn: 2021
    • Fertigstellung: 2022
    • Status: Realisiert
    • Bauherrschaft: Irène Zünd und Gregor Zünd, Luzern
    • Projektleitung lbta: Sibylle Theiler Rindlisbacher
    • Team lbta: Francesca Rubino
    Umbau Hirschengraben 15, Luzern
    Luzern
    Bestand, Ausgeführt
    None
    2022
    Realisiert
    606
lbta*. Gemeinsam Entwickeln.