• News
  • Projekte
    • Galerie
    • Liste
    • Ausgeführt
    • Bestand
    • Dienstleistung
    • Hotel Gastronomie
    • Infrastruktur
    • Sondernutzungsplan
    • Studien
    • Wohnen
    • Wettbewerbe
  • Engagement
  • Firma
  • Team
  • Jobs
  • Publikationen
  • Kontakt
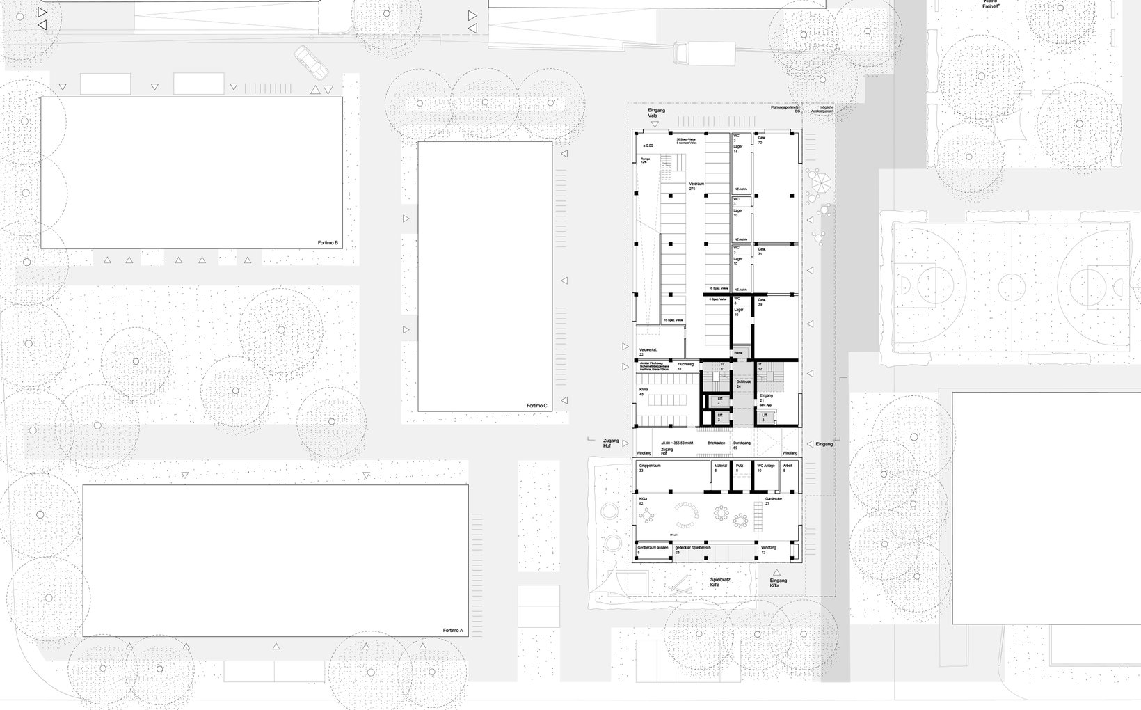
  • Wettbewerb Hochhaus Telli Ost, Aarau

    1. Rang

    Das Hochhaus ist Teil des Telli-Quartiers. Die differenzierte Ausbildung des Gebäudevolumens schafft präzise städtebauliche Bezüge zu den umgebenden Gebäuden und zu den Freiräumen. Die Erscheinung des Hauses zeigt klar die Wohnnutzung. Die einfache und starke horizontale Bänderung bietet ein robustes strukturelles Gerüst für das Bespielen des Hauses mit unterschiedlichen Verkleidungen. Die Erscheinung des massiven Sockels spielt mit der Präsenz der Schriften und Zeichen auf dem Boden der Stadt. Im Niveau 2 liegen 19 Serviceappartements. Die Niveaus 3 bis 15 enthalten insgesamt 100 Wohnungen.

    In Zusammenarbeit mit: 
    Visualisierung: Pyxel Gmbh, Luzern

    • Ort: Aarau
    • Kategorie: Wohnen, Dienstleistung
    • Baubeginn:
    • Fertigstellung: 2026
    • Status: Wettbewerb
    • Bauherrschaft: Fortimo AG, St. Gallen
    • Partner lbta: vav Architekten Valencia, Ines Arnau, Dario Petke, Melike Tprak, Eduard Soria
    • Projektleitung lbta: Franz Bucher Suanzes
    • Team lbta: Rolf Brülisauer, Sibylle Theiler Rindlisbacher
    Wettbewerb Hochhaus Telli Ost, Aarau
    Aarau
    Wohnen, Dienstleistung
    1. Preis
    2026
    Wettbewerb
    650
lbta*. Gemeinsam Entwickeln.