• News
  • Projekte
    • Galerie
    • Liste
    • Ausgeführt
    • Bestand
    • Dienstleistung
    • Hotel Gastronomie
    • Infrastruktur
    • Sondernutzungsplan
    • Studien
    • Wohnen
    • Wettbewerbe
  • Engagement
  • Firma
  • Team
  • Jobs
  • Publikationen
  • Kontakt
  • Wohn-und Gewerbeüberbauung Salzhof Suhr

    Projektwettbewerb 1. Rang

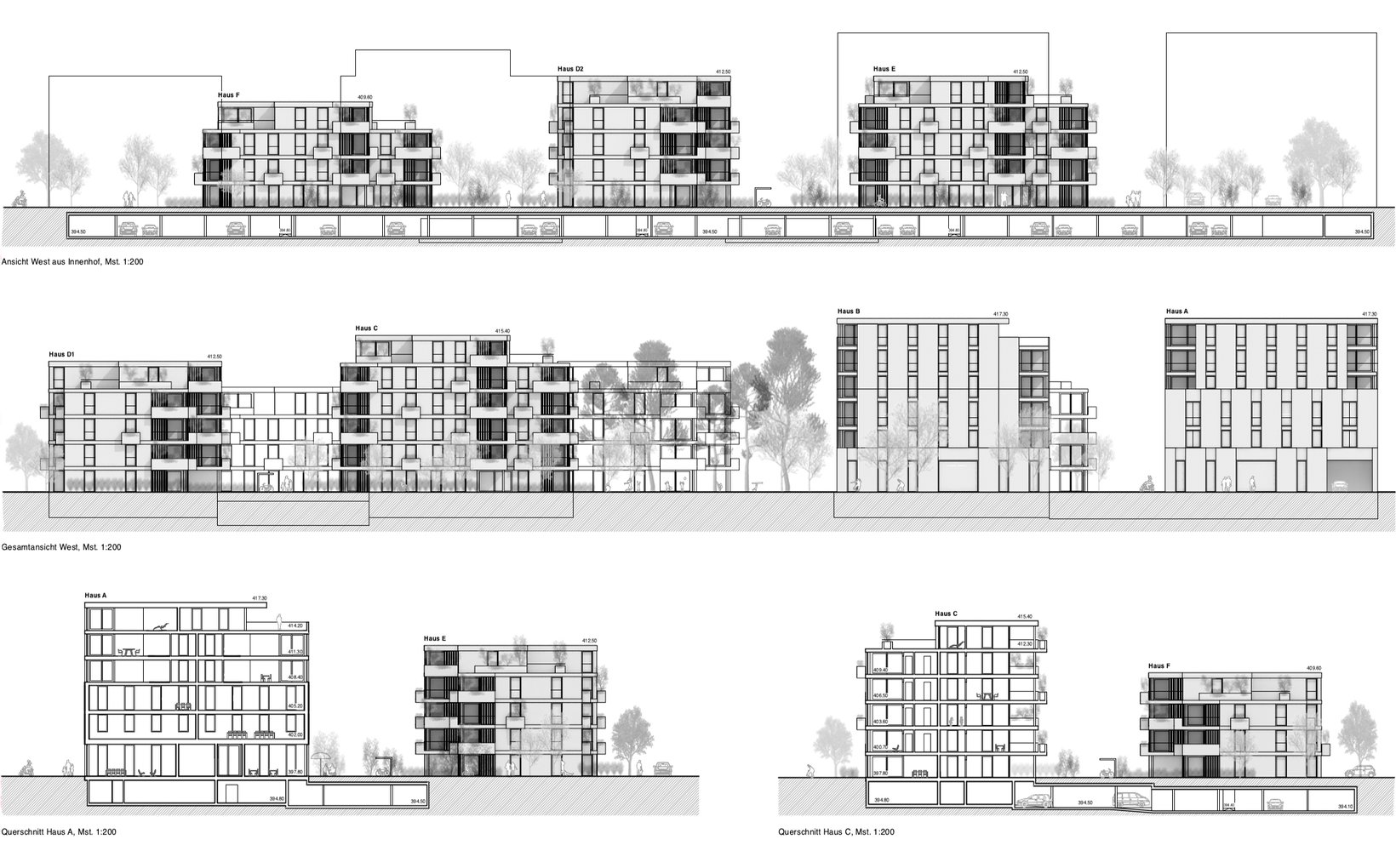
    Am Salzhof entwickelt sich ein neues Quartier, welches den Übergang vom kleinteiligen Wohnquartier mit privaten Aussenflächen und dem Bahnhofareal mit öffentlichen Plätzen übernimmt. Am hinteren Bahnhofplatz entstehen Gebäude mit gewerblich genutzten Räumen an öffentlichen Plätzen. Die punktförmigen Wohnhäuser indes, sind Teil von Wohninseln mit privaten Aussenräumen. Ein feingliederiges Wegnetz verbindet die Gebäudekörper und leitet übersichtlich durch die Überbauung.

    Die Wohnhäuser mit den Eigentumswohnungen sind je nach Typ als 3- oder 4-Spänner organisiert. Die zentrale Erschliessung mit den umliegenden Wohnungen ergibt ein kompaktes Volumen. Die Mietwohnungen befinden sich an öffentlicher Lage über den Gewerbenutzungen.

    ARGE fsp Architekten und Lüscher Bucher Theiler Architekten

    In Zusammenarbeit mit:
    Landschaftsarchitekten: BNP Landschaftsarchitekten, Zürich
    Visualisierung: Pyxel GmbH
    Modell: Gleis Atelier 5

    • Ort: Suhr
    • Kategorie: Wohnen, Dienstleistung
    • Baubeginn: 2022
    • Fertigstellung: 2022
    • Status: Abgeschlossen
    • Bauherrschaft: Fortimo Invest AG, St. Gallen
    • Team lbta: Christoph Käch, Sibylle Theiler Rindlisbacher, Francesca Rubino, Franz Bucher Suanzes, Nicole Wyss, Rolf Brülisauer
    Wohn-und Gewerbeüberbauung Salzhof Suhr
    Suhr
    Wohnen, Dienstleistung
    1. Rang
    2022
    Abgeschlossen
    616
lbta*. Gemeinsam Entwickeln.