Wohnen im Bethlehem, Immensee
Wettbewerb 2012 | 1. Rang
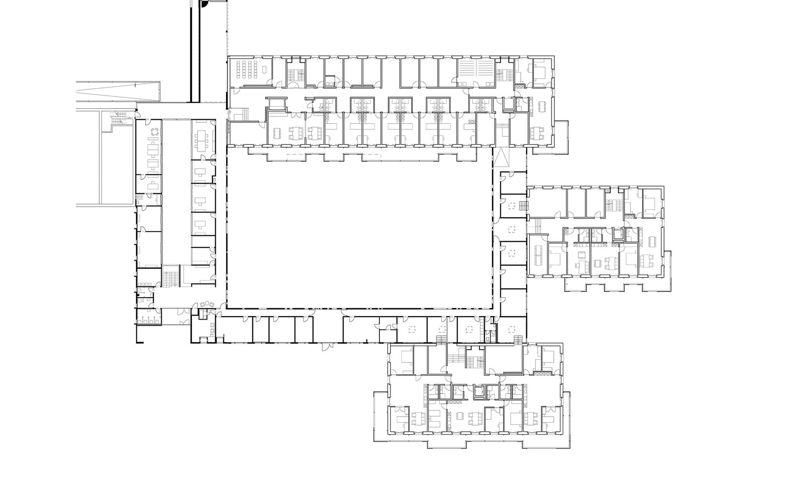
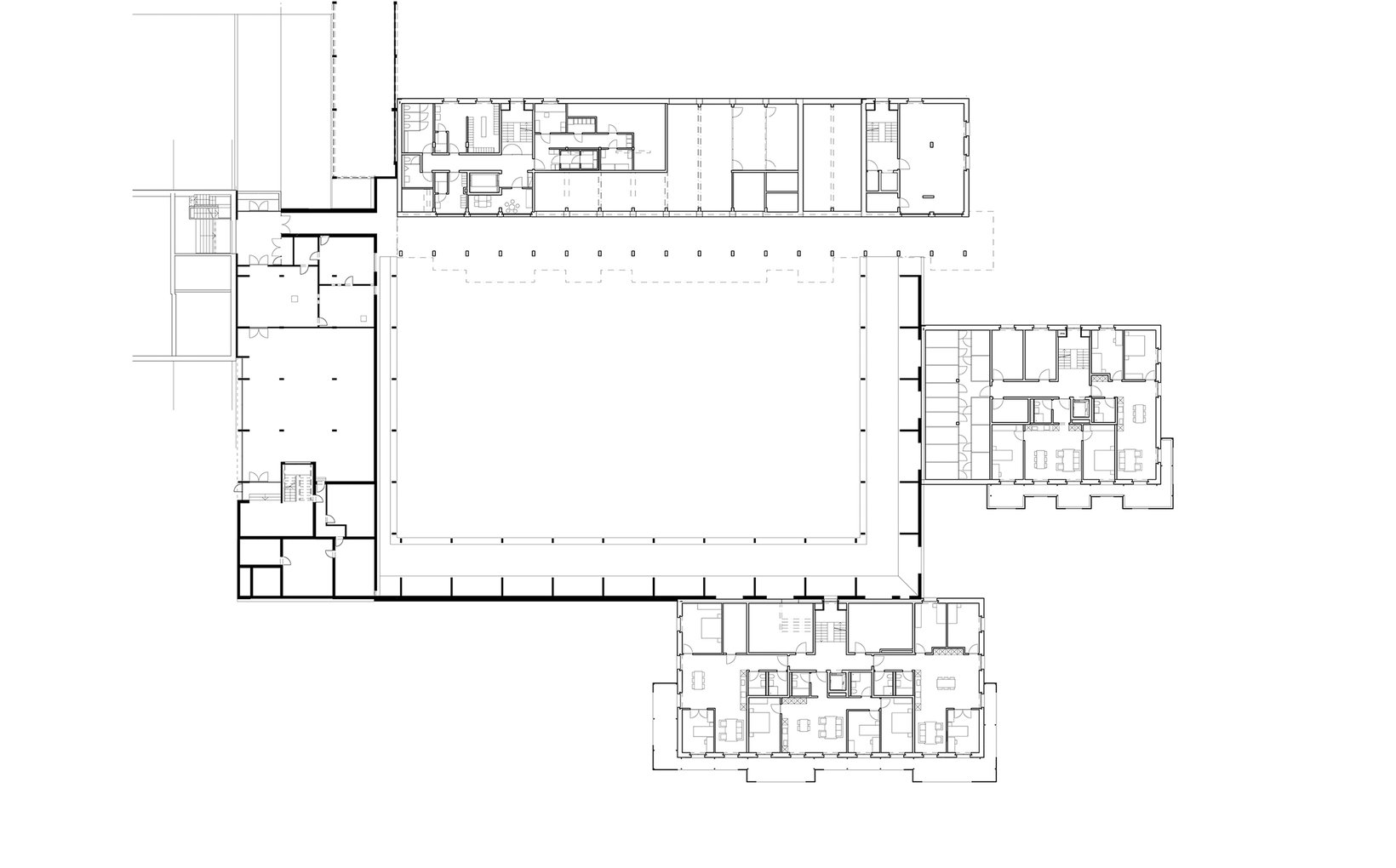
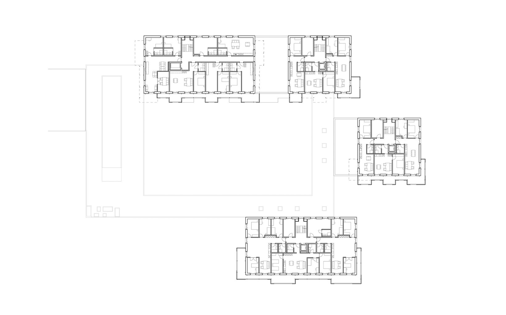
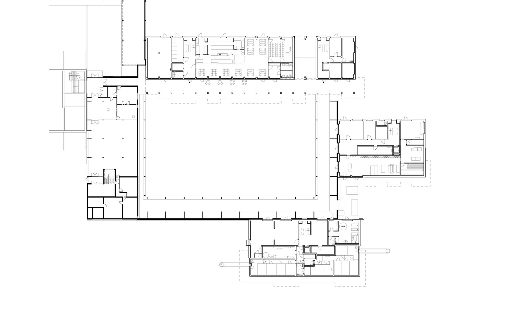
Der Hof des Missionshauses von Otto Glaus ist der eindrücklichste Aussenraum auf dem Areal. Er bleibt erhalten und wird zum neuen Quartierhof. Die 12 neuen Wohnhäuser der Gesamtanlage mit rund 150 Wohnungen sind einfache, vier- bis fünfgeschossige Einzelbauten. Sie liegen so, dass die Gesamtüberbauung für die Sonne und für Aus- und Durchblicke durchlässig ist. Durch die Kleinbauten und Hecken entstehen kleinräumige Gassen und Nischen. Die Nischen sind Räume für die gemeinschaftliche Nutzung; sie weisen jenen spezifischen Grad an Öffentlichkeit aber auch an Intimität auf, welcher den Bedürfnissen einer bestimmten Gruppe entspricht. In der ersten Bauetappe wird das Zentrum des neuen Quartiers, die neue Baugruppe um den Hof des Missionshauses realisiert.
In Zusammenarbeit mit:
Landschaftsarchitekt: Fahrni Landschaftsarchitekten GmbH, Luzern
Kostenplaner/Bauleitung: Büro für Bauökonomie, Luzern
Bauingenieur: CES Bauingenieure AG, Hergiswil NW
Elektroplaner: Bähler AG, Küssnacht am Rigi
HLK-Ingenieur: Möwa Planung GmbH, Küssnacht am Rigi
Sanitäringenieur: Grünig + Partner AG, Liebefeld
Bauphysik: Martinell + Menti AG, Luzern
Brandschutz: protec-plan GmbH, Rothenburg
Farbberatung: Angelika Walthert, Luzern
Visualisierung: Studio 12, Luzern
Fotos: Daniela Burkart, Luzern