• News
  • Projekte
    • Galerie
    • Liste
    • Ausgeführt
    • Bestand
    • Dienstleistung
    • Hotel Gastronomie
    • Infrastruktur
    • Sondernutzungsplan
    • Studien
    • Wohnen
    • Wettbewerbe
  • Engagement
  • Firma
  • Team
  • Jobs
  • Publikationen
  • Kontakt
  • WW Neubau Betriebsleiterwohnhaus und Milchviehscheune Fluck, Sempach

    Projektwettbewerb 1. Rang

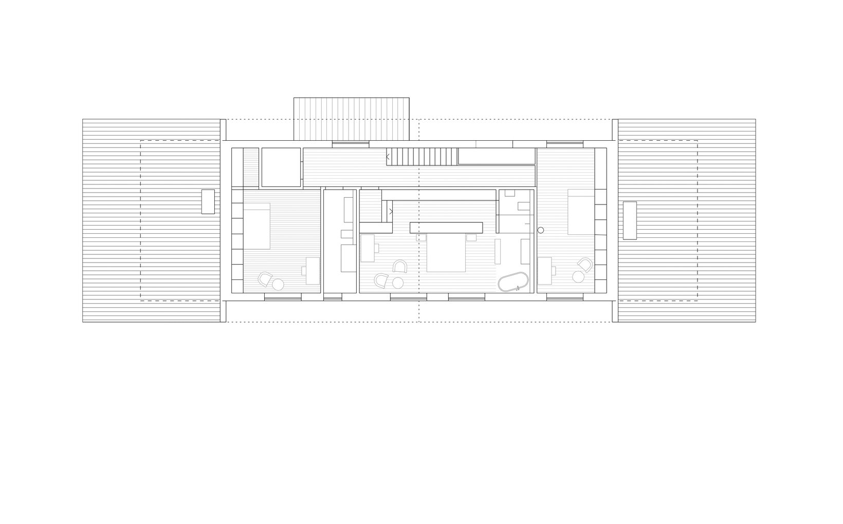
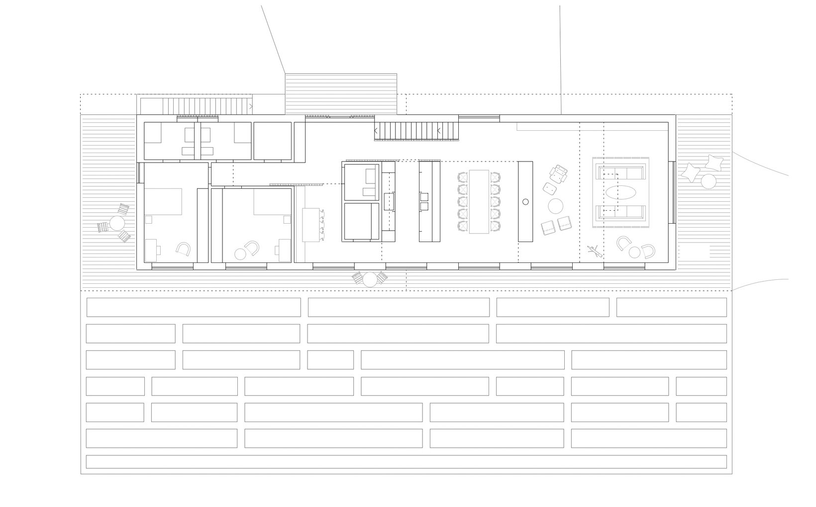
    Das Wohnhaus, die Remise und die Scheune nehmen aufeinander Bezug mit grossen flachen Satteldächern, markanten Vordächern und breiten Giebelfassaden. Das Holz und die dunkle Schalung finden sich bei allen Gebäuden. Bei der Scheune wird im Sinne einer Variation zusätzlich das konstruktive Gefüge in hellem Holz nach Aussen gezeigt. Beim Wohnhaus fasst das helle Holz die Öffnungen farblich kontrastierend ein und zeichnet so die Fenster als «Augen» des Hauses aus.

    Alle Wohnräume liegen an der Talfassade haben Sicht auf See und Berge. Die Zimmer im Dachgeschoss folgen in der Lage der Neigung des Daches, damit ihre Raumhöhe immer grosszügig bleibt. Dadurch entstehen im Erdgeschoss unterschiedliche Deckenformen und -höhen. Jeder Raum im Haus hat somit seinen eigenen räumlichen Charakter. Es entsteht eine vielfältiges Raumgefüge in einem schlichten Baukörper.


    Landschaftsarchitekten: Fahrni Landschaftsarchitekten
    Visualisierungen: Pyxel GmbH
    Modell: Gleis Atelier 5

    • Ort: Sempach
    • Kategorie: Wohnen
    • Baubeginn:
    • Fertigstellung: 2021
    • Status: Abgeschlossen
    • Team lbta: Rolf Brülisauer, Sibylle Theiler Rindlisbacher, Franz Bucher Suanzes
    WW Neubau Betriebsleiterwohnhaus und Milchviehscheune Fluck, Sempach
    Sempach
    Wohnen
    1. Rang
    2021
    Abgeschlossen
    605
lbta*. Gemeinsam Entwickeln.