• News
  • Projekte
    • Galerie
    • Liste
    • Ausgeführt
    • Bestand
    • Dienstleistung
    • Hotel Gastronomie
    • Infrastruktur
    • Sondernutzungsplan
    • Studien
    • Wohnen
    • Wettbewerbe
  • Engagement
  • Firma
  • Team
  • Jobs
  • Publikationen
  • Kontakt
  • WW Oberstufenschulhaus

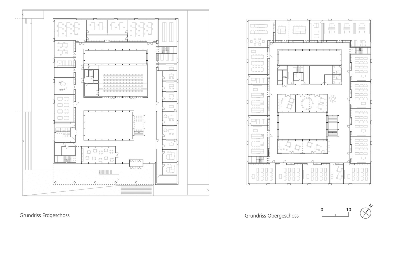
    Der allseitig gleichwirkende, zurückhaltende Körper lässt verschiedene Aussenräume entstehen. Das Feld mit den öffentlichen Schulnutzungen wird wie ein Campus als kontinuierliche Anlage bestückt. Das Abheben des Neubau-Körpers mit Pfählen ermöglicht die Kontinuität des Raumes. Das Gebäude erscheint als leichter, einfacher, verputzter Kubus. Die innere Atmosphäre ist geprägt durch viel Licht und warme Materialien.

    In Zusammenarbeit mit:
    Landschaftsarchitekten: Hüsler + Hess, Luzern
    Bauingenieur: Trachsel AG, Luzern
    Gebäudetechnik: Wirthensohn AG, Luzern
    Visualisierung: vdp Studio GmbH, Luzern
    Modell: Modellbau Gleis 5, Hergiswil NW



    • Ort: Horw
    • Kategorie: Dienstleistung
    • Baubeginn:
    • Fertigstellung: 2011
    • Status: Abgeschlossen
    • Bauherrschaft: Gemeinde Horw
    • Team lbta: Franz Bucher Suanzes, Rolf Brülisauer, Silvan Andereggen, Roman Lüscher, Beat Pfaffen, Kim Dao Tran-Nguyen, Sibylle Theiler Rindlisbacher
    WW Oberstufenschulhaus
    Horw
    Dienstleistung
    None
    2011
    Abgeschlossen
    551
lbta*. Gemeinsam Entwickeln.