• News
  • Projekte
    • Galerie
    • Liste
    • Ausgeführt
    • Bestand
    • Dienstleistung
    • Hotel Gastronomie
    • Infrastruktur
    • Sondernutzungsplan
    • Studien
    • Wohnen
    • Wettbewerbe
  • Engagement
  • Firma
  • Team
  • Jobs
  • Publikationen
  • Kontakt
  • WW Wohnen im Bethlehem

    Projektwettbewerb 1. Rang

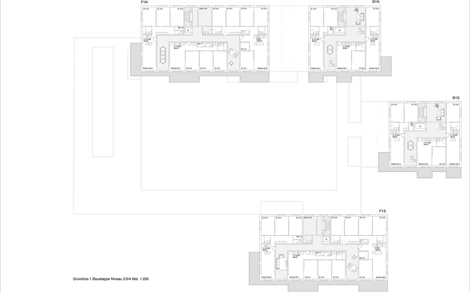
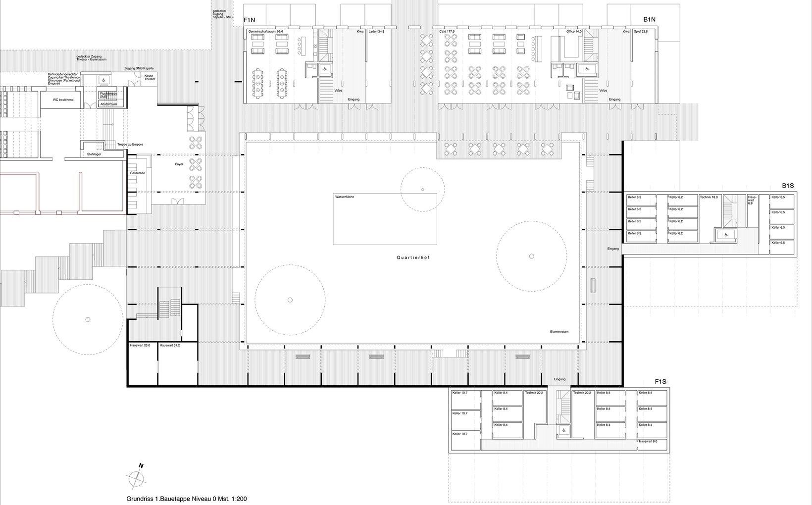
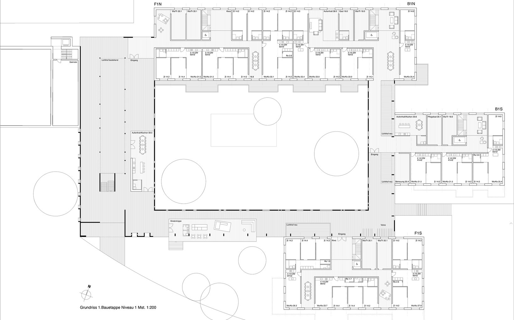
    Historische Kontinuität, Leben in Gemeinschaft, Schlichtheit und eine Massstäblichkeit, welche dem Ort angemessen ist, verleihen dem neuen Wohnquartier seine Identität.

    Der Hof des Missionshauses von Otto Glaus ist der eindrücklichste Aussenraum auf dem Areal. Er bleibt weitestgehend erhalten und wird in den neuen Quartierhof verwandelt. Er dient als Bindeglied zwischen Bestand und Neuem. Die 12 neuen Wohnhäuser mit rund 150 Wohnungen sind einfache, vier- bis fünfgeschossige Einzelbauten. Sie werden so situiert, dass die Gesamtüberbauung für die Sonne und für Aus- und Durchblicke durchlässig ist. In der ersten Etappe werden 4 Wohnhäuser um den Hof gelegt.Gemeinsames Leben kann sich in unterschiedlich weit gefassten Gemeinschaften abspielen: Familie, Nachbarn, Hausbewohner, Quartierbewohner, Gemeinde. Damit sich das Zusammenleben entwickeln kann, braucht es unter anderem spezifische Räume und Orte, welche sich für das Zusammenleben in der jeweiligen Gruppe eignen. Diese spezifischen Räume und Orte nennen wir Nischen; sie weisen jenen spezifischen Grad an Öffentlichkeit aber auch an Intimität auf, welcher den Bedürfnissen einer bestimmten Gruppe entspricht. Die Nischen sind im Projekt systematisch vorgeschlagen; im Gebäudeinnern und im Aussenraum.

    In Zusammenarbeit mit
    Landschaftsarchitekten: Fahrni Landschaftsarchitekten GmbH Luzern
    Energie: Dr. Eicher + Pauli AG Luzern

     

    • Ort: Immensee
    • Kategorie: Wohnen
    • Baubeginn: 2012
    • Fertigstellung: 2012
    • Status: Realisiert
    • Bauherrschaft: Verein Missionshaus Bethlehem
    • Team lbta: Rolf Brülisauer, Roman Lüscher, David Szegedi, Sibylle Theiler Rindlisbacher, Franz Bucher Suanzes
    WW Wohnen im Bethlehem
    Immensee
    Wohnen
    1. Rang
    2012
    Realisiert
    557
lbta*. Gemeinsam Entwickeln.